Riqualificazione della Biblioteca Tassinari Clò - Villa Spada

La Biblioteca, fondata nel 1975 e intitolata, dal 1998, all’insegnante, scrittore e studioso di storia bolognese Oriano Tassinari Clò (Bologna, 1936- 1995), si trova nell’ampio parco collinare circostante Villa Spada, storica villa settecentesca bolognese. 

Attraverso gli interventi PON Metro 2014-2020, ci si propone di rendere il parco un polo di attrazione di livello cittadino per l'arte, la cultura e la creatività. 

Sono stati realizzati interventi di messa in sicurezza e riqualificazione della biblioteca, allo scopo di aumentarne la fruibilità e agevolare lo svolgimento di attività di inclusione e innovazione sociale. 

In particolare, sono stati predisposti interventi per aumentare la sicurezza strutturale preesistente della costruzione, quali, tra gli altri:

  •      la realizzazione di nuove porzioni murarie interne
  •      il consolidamento della fondazione esistente
  •      il rinforzo delle travi del solaio del primo piano

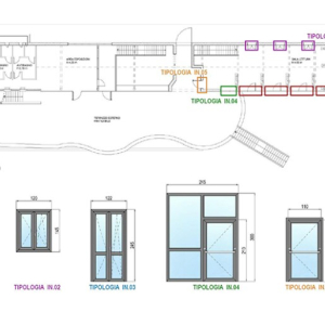
Inoltre, vista la necessità di migliorare le prestazioni energetiche dell'edificio, è stato necessario sostituire gli infissi, ormai degradati, con nuovi infissi che garantiscono un isolamento termico più efficace.

Giugno
2021
Inizio dei lavori
Maggio
2022
Fine dei lavori
Importo totale progetto: 
€115.226,24
Stato: 
Concluso
Fondo: 
PON Metro
Risorse finanziamento: 
€115.226,24
Soggetto attuatore: 
Comune di Bologna

Impatto dell'iniziativa in termini di sostenibilità

Risparmio energia pubblica

Galleria foto e video